29
May
2019
¿´µÃ¼û·çÎïµÄ³Ç³Ø¡ª¡ªËÕÎÄÌ壬£¬£¬Èù«¹²ÐÞ½¨ÊôÓÚÿһ¸öÈË
¶¶È¦

?

?
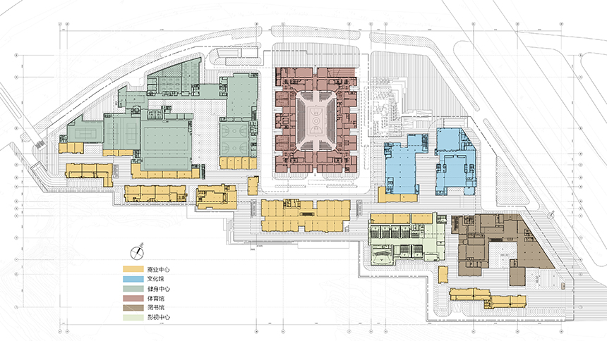
ËÕÖݸßÐÂÇøÎÄÌåÖÐÐÄλÓÚËÕÖݿƼ¼³ÇÄÚ£¬£¬£¬±³¿¿Ð¡Áúɽ£¬£¬£¬±»Ì«ºþ´óµÀºÍä°¹âÔ˺ÓËùÎ§ÈÆ£¬£¬£¬Õ¼µØÈý°ÙÓàĶ£¬£¬£¬¹ÝÊÒÊ®ÆßÍò·½¡£¡£¡£¡£¡£
?

¡øÔ¶Ì÷ËÕÎÄÌå
?

?

¡ø´ÓÔ¶¼°½ü
?
ÆäËù´¦µÄµØ¿éÔøÊDzÉʯ³¡£¬£¬£¬ÍÚ¾òºóÁôϵÄÖØ´óʯ¿ÓÐγÉÁ˺þÃæ£¬£¬£¬¶øÊ£ÏµÄʯ±ÚÎ§ÈÆ×źþµÄÁíÒ»±ß£¬£¬£¬ÐÞ½¨Ê¦ÒÔµØÐεÄÂöÂç×÷Ϊ¿´·¨Éè¼ÆµÄÔ´Í·£¬£¬£¬ÑÓÐøÔÓеÄɽÌåºÍʯ±ÚʹÕû¸öÐÞ½¨ÈºÌåÓëÇéÐÎÈÚºÏÔÚÒ»Æð¡£¡£¡£¡£¡£ÎÒÃÇÏ£ÍûÐÞ½¨³ÉΪɽµÄÑÓÐø£¬£¬£¬³ÉΪÖܱßÇéÐεÄÒ»²¿·Ö£ºÑÓÐøÔÓеÄɽÌåºÍʯ±ÚʹÕû¸öÐÞ½¨ÈºÌåÓëÇéÐÎÈÚºÏÔÚÒ»Æð£¬£¬£¬ÔÚÇ×È˵ıê׼ϳÉΪÒþÐÎÓÚ¶¼»áÇéÐεĵؾ°»¯ÐÞ½¨£¬£¬£¬¶ø²»ÊÇÒ»¸ö¸ß¸ßÔÚÉÏ¡¢¾ÜÈËÓÚǧÀïÖ®ÍâµÄÅÓÈ»´óÎï¡£¡£¡£¡£¡£
ËÕÖݸßÐÂÇøÎÄÌåÖÐÐı»¿´³É¶¼»á¿Õ¼äºÍÉúÑĵÄÒ»²¿·ÖÉè¼Æ,17Íòƽ·½Ã׵ľ޸ÅÂÔÁ¿·ºÆðΪ¹¦Ð§Ð¡Ä£¿£¿£¿£¿£¿éµÄ´î½Ó£¬£¬£¬´Ó¶øÐÞ½¨µÄÌåÁ¿Ò²µÃÒÔÏû½â£¬£¬£¬³ÉΪ¶¼»áµÄÒ»¸öÓлú×é³É²¿·Ö¡£¡£¡£¡£¡£ÕâÖÖÓ빦ЧϸÃÜÏà¿ÛµÄ¿Õ¼ä½á¹¹£¬£¬£¬ÕýÊÇ¡°ÔÆÐÎˮʯ¡±¿´·¨µÄÕæÕýÒâÒå¡£¡£¡£¡£¡£
?
?
ÔÚÊý×Ö»¯µÄÅ侰֮ϣ¬£¬£¬ÐÞ½¨Ê¦ÃÇÏ£Íûͨ¹ýÓÃһЩ¼òÆÓÁýͳµÄ·½ÐÎÌå¿é£¬£¬£¬ÒÔÒ»ÖÖħ·½Ê½¡¢ÏñËØ»¯µÄ·½Ê½Èº¼¯ÔÚÒ»Æð£¬£¬£¬À´×ª´ïÒ»ÖÖÀàËÆÌ«ºþʯ°ã¾«ÃîÖØ´óµÄ¿Õ¼ä״̬¡£¡£¡£¡£¡£¸ßµÍµÄÌå¿éʹ¿Õ¼ä±¬·¢Ò»ÖÖ¡°Áô°×¡±£¬£¬£¬ÐÎʽÓ빦ЧµÄ¶ÔÓ¦²»ÔÙ¼òµ¥Îȹ̣¬£¬£¬¶àÒâºÍ±çÖ¤µÄÆÓª½á¹¹µÄ×ÔÖ÷ÐÔ¿ÉÒÔͨ¹ý¸´ÖƺͱäÒìÀ´Ë³Ó¦ÇéÐΣ¬£¬£¬Ö¸µ¼ÐÞ½¨×Ô¾õÉú³¤¶ø²»ÆÆËðËüµÄÍêÕûÐÔ¡£¡£¡£¡£¡£
?
¨‹Ä£ÊýÖÆµÄ¡¢ÏñËØ»¯µÄÁýͳÊÖ·¨

?

?

?

?

?

?
¡°ÔÆÐÎˮʯ¡±µÄ¿´·¨ÊÇÎÄ»¯ÓëδÀ´µÄÑÓÐø£º³Ð¼ÌËÕÖÝÔ°ÁÖÐéʵÁ¬ÏµµÄ¿Õ¼ä¹¹Ð͵Äͬʱ£¬£¬£¬¶àÒâµÄµ¯ÐÔ¿Õ¼ä×éÖ¯¿ÉÒÔΪδÀ´ÔËÓªÌṩ¸ü¶à¿ÉÄÜÐÔ¡£¡£¡£¡£¡£ÕâÒ²ÐíÊÇÔÚÖйúÖØ´ó¶à±äµÄÏîÄ¿ÇéÐÎÏ£¬£¬£¬¼ÈÌá¸ßÔËÓª¹¦Ð§µÄ¿É±äÐÔºÍÎÞаÐÔ£¬£¬£¬Í¬Ê±ÔÚδÀ´ÐèÒªÐÞ¸Äʱ±£»£»£»£»£»£»¤Éè¼Æ¿´·¨µÄÒ»ÖÖÕ½ÂÔ¡£¡£¡£¡£¡£
?

?

?
ÔÚÕâ¸öÏîÄ¿µÄÉè¼ÆÖУ¬£¬£¬Öصã´Ó¡°ÊÂÎñÐÔ¡±×ªÒƵ½ÁË¡°ÈÕ³£ÐÔ¡±£¬£¬£¬Ê¹Æä³ÉΪ¶¼»áÉúÑĵÄÑÓÐø£º´©ÐÐÔ°µØµÄÉÌÒµ½ÖµÀºÍ¸»ºñµÄ¹«¹²¿ª·Å¿Õ¼ä½«Õâ¸öÌåÁ¿ÖØ´óµÄ¹«¹²ÐÞ½¨ËÍ»¹¸øÖܱßÊÐÃñ¡£¡£¡£¡£¡£ÏÕЩËùÓеÄÖ÷Òª¹¦Ð§Ä£¿£¿£¿£¿£¿é¶¼ÔÚÕâÌõ½ÖµÀÉÏÉèÓÐÊÕÖ§¿Ú£¬£¬£¬Í¼Êé¹Ý¡¢ÎÄ»¯ÖÐÐÄ¡¢Ó°Ï·Ôº¡¢ÓÎÓ¾¹Ý¡¢¿§·È¹Ý¡¢Êéµê¡¢²ÍÌüµÈ£¬£¬£¬¶¼³ÉΪÕâÌõ½ÖµÀÉúÑÄÂÄÀúµÄÒ»²¿·Ö¡£¡£¡£¡£¡£
?
¨‹¹«¹²¿ª·Å¿Õ¼ä¡ª¡ª¹ã³¡

?

?

?

?

?
¨‹¹«¹²¿ª·Å¿Õ¼ä¡ª¡ªÉÌÒµ½ÖµÀ

?

?

?

?

?
ÔÚÉÌÒµ½ÖµÀÖ®ÉÏ£¬£¬£¬ÁùÃׯ½Ì¨ÉϵĄ̈µØ¹ã³¡×÷ΪµØ¿éµ±ÖеÄÖ÷Òª¼¯É¢Ô°µØ¶ø±£´æ£¬£¬£¬ºÍÆäÏ·½µÄÉÌÒµ½ÖµÀÒ»Æð£¬£¬£¬Õ¹ÏÖ×Ŷ¼»áÉúÑĵĶàÑùÐÔºÍÖØ´óÐÔ£¬£¬£¬ÔÚ²½ÐС¢¹ºÎï¡¢ÐÝÏ¢¡¢Í£ÁôºÍ½»Á÷Ö®¼ä±¬·¢Ðí¶àÖØµþÇÒÆµÈÔµÄÈÕ³£ÐÔת»»¡£¡£¡£¡£¡£×÷Ϊ×ÛºÏÐÔÎÄ»¯ÌåÓýÐÞ½¨Èº£¬£¬£¬ËÕÖݸßÐÂÇøÎÄÌåÖÐÐÄÖ÷Òª¹¦Ð§·ÖΪÈý´ó°å¿é£ºÎÄ»¯¿Õ¼ä¡¢ÌåÓý¿Õ¼äºÍÉÌÒµ¿Õ¼ä£¬£¬£¬º¸ÇÇøÎÄ»¯¹Ý¡¢Í¼Êé¹Ý¡¢ÌåÓý¹Ý¡¢È«Ãñ½¡ÉíÖÐÐÄ¡¢Ó°ÊÓÖÐÐÄÒÔ¼°ÊÒÍâÐÝÏй㳡µÈÅäÌ×ÉèÊ©¡£¡£¡£¡£¡£
?
¨‹¹«¹²¿ª·Å¿Õ¼ä¡ª¡ª²î±ðÌõÀíµÄÍ¥ÔºÐòÁпռä

?

?

?

?

?

?

?
¨‹²¿·ÖÖ÷³¡¹Ý
?
?
?

?
¨‹Éè¼ÆÍ¼Ö½

£üÊ×²ãÆ´ºÏÆ½ÃæÍ¼£ü
?

£üÌåÓý¹ÝÁ¢ÃæÍ¼£ü
?

£üÎÄ»¯¹ÝÁ¢ÃæÍ¼£ü
?

£üÌåÓý¹ÝÆÊÃæÍ¼£ü
?
µØµã£ºÖйú£¬£¬£¬½ËÕÊ¡£¬£¬£¬ËÕÖÝÊиßÐÂÇø
×ÜÃæ»ý£º17Íòƽ·½Ã×
ÐÞ½¨Éè¼Æ£º¶¶È¦
Éè¼ÆÍŶӣº
ÐÞ½¨£º»ÆÏòÃ÷¡¢º«½¡¡¢³ÂìÍ¡¢ÖÜÐÀ¡¢°×ÓФ·Æ¡¢ÍõÏþÑó¡¢ÂÀÏþÓî¡¢ÔøÕÜ¡¢·ë²©¡¢Â½Ü²¡¢ÁõÑô¡¢±ÏÔóºÀ¡¢ÁõÅæ¡¢Ô¬¼ÑÄÝ¡¢¶ÅÅô¡¢Äß×ÓÓí¡¢ÂíÀöÄÈ¡¢ÀîÐÂÃÈ¡¢ÕŽΰ
½á¹¹£ºÐ»ÍúÀ¼¡¢ÀîΰÐË¡¢ÄôìÍ¡¢ÃçÓÀÖ¾¡¢Éò½Ü¡¢µËµÂ¾ý¡¢·ëÁÁ²¨¡¢ÀîæÃæÃ¡¢¼¾ÉÜ¿¡¢ÐÜά½¨¡¢ÎâÀÚ¡¢Íõ¼Ñ½Ü¡¢ÁõÍþ¡¢Ñîʤ¡¢Â½ÏþÓÂ
»úµç£º³ÂÌΡ¢Íõ¹ØÔ½¡¢½ù¾©¡¢ÍõºãÖ®¡¢Ö£¿£¿£¿£¿£¿ÂÑÒ¡¢ÔøÇÍ
¸øÅÅË®£ºÍõéÅ÷¡¢ÍõÏþÄþ¡¢ºúºì÷
ůͨ£ºÍõ¿¡Ç¿¡¢Áõ»ªÇå¡¢ÕÔÜ¿Á¢¡¢ÂÞÔ¨¡¢Òü¼Ò½Ü¡¢Ñ¦·É
Í깤ʱ¼ä£º2016.9£¨¾°¹Û½«ÓÚ2017ÄêÍ깤£©
ÒµÖ÷¼°ÔËÓªÕߣºËÕÖݸßÐÂÇøÎÄÌåÉú³¤ÓÐÏÞ¹«Ë¾
ÏàÖúµ¥Î»£º
¸Ö½á¹¹¡¢½ðÊôÎÝÃæÕÕÁÏ£ºÕã½¾«¹¤
ĻǽÕÕÁÏ£º¿ÂÀû´ï¡¢½ðó«òë
¾°¹ÛÉè¼Æ£ºBAU¡¢½ðó«òë
LOGO£º×¨ÐÄ´´Á¢
µÆ¹âÕÕÁÏ£ºÀÊ»Ô
ÊÒÄÚÉè¼Æ£º¿ÂÀû´ï¡¢ËÕÖݹúó
ÉãӰʦ£ºÉϺ£³Âò«ÉãÓ°ÊÂÇéÊÒ£¬£¬£¬³É¶¼±£´æÐÞ½¨ÉãÓ°ÓÐÏÞ¹«Ë¾
?
?
?
?